Informes
Solicita Información 222 6614 136 (01) 241 415 1054 proyectos@mueblesdetiendas.com.mx
MUEBLES DE TIENDAS, MUEBLES TIPO OXXO, ESTANTERÍA METÁLICA, ESTANTES, REPISAS, MOSTRADORES, VITRINAS

SERVICIOS DE DISEÑO

OFRECEMOS EL DISEÑO DEL LAY OUT DE SU TIENDA, Y LA IMAGEN DE SU NEGOCIO… DESDE EL LOGOTIPO HASTA LA CULMINACIÓN DE PROYECTO. FABRICAMOS TODO TIPO DE MOBILIARIO, TENEMOS MUEBLES DE OFICINA, MUEBLES PARA TIENDAS Y NEGOCIOS EN GENERAL.
Los servicios que ofrecemos son los siguientes:

= Visita a los locales comerciales u oficinas, para toma de medidas y fotografías para poder ofrecer propuestas de distribución (lay out) de nuestros muebles. (Esto tiene un cargo para lugares fuera de la ciudad de Puebla) Si se cuenta con la información (planos o croquis detallados) puede no ser necesaria la visita, y se tomarán las medidas que el cliente proporcione en un croquis o plano preferentemente hecho en AutoCad para dar una respuesta más rápida.

= Apoyamos a nuestros clientes con el diseño (lay out) de los muebles en su negocio, casa u oficina.

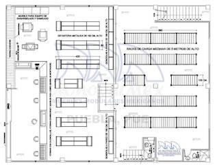
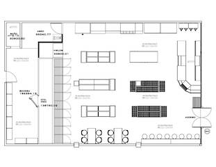
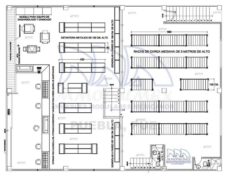
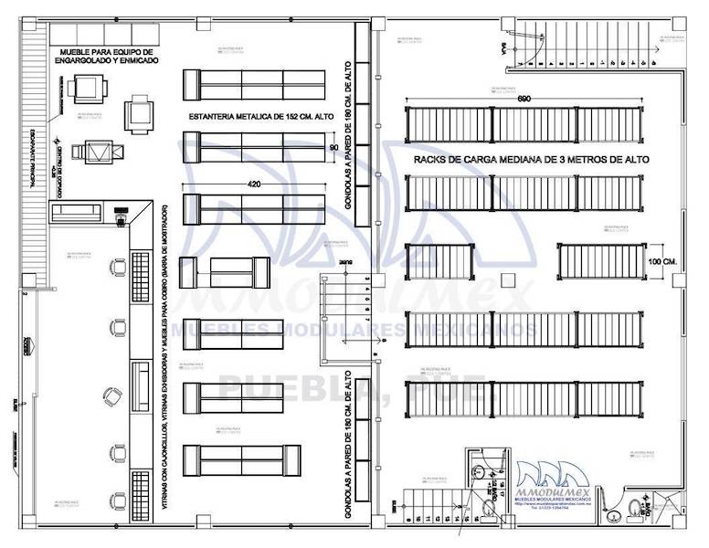
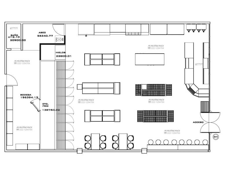
Este trabajo consiste en hacer un esquema de distribución lógico y ordenado de los muebles que fabricamos dentro de su piso de venta y aéreas de almacenaje o de cualquier espacio que vaya a ocupar su negocio o actividad.

Les presentamos dibujos de planta del local comercial u oficina, donde señalamos las áreas ocupadas por nuestros muebles, así como las distintas áreas de almacenaje, pasillos de desplazamiento de los clientes, y todo lo necesario para el adecuado aprovechamiento del espacio y la optimización del tráfico en las distintas áreas de su negocio. Adicional a los dibujos de planta, presentamos dibujos en tres dimensiones (dibujos en perspectiva o isométricos) para indicar al cliente claramente del tipo de muebles que se están sugiriendo, y que nuestros clientes tengan de esta manera una idea clara del tipo de mueble o proyecto que van a recibir. Si es necesario, porque el proyecto es más complejo, se presentan detalles adicionales, e incluso imágenes fotorrealistas de los muebles, donde se presentan materiales y colores a utilizar.

=Diseño de Logotipo y de Imagen: Podemos apoyar a los clientes desde el mismo diseño del logotipo de su empresa, y también con el diseño de la imagen exterior e interior de su negocio. En este caso se presentan dibujos a color tanto del exterior como del interior de la tienda, donde se señalan colores y materiales a utilizar para la remodelación o construcción de su negocio. Esto tiene un cargo que es independiente a la cotización o fabricación de los muebles